海坦生产自吸排污泵性能曲线及适用范围:
发布时间:2013-9-29 8:46:29 来源:海坦泵业 点击次数:4267
自吸泵的适用范围
1、适用于城市环保、建筑、消防、化工、制药、染料、印染、酿造、电力、电镀、造纸、工矿冲洗、设备冷却等。
2、装上摇臂式喷头、又可将水冲到空中后,散成细小雨滴进行喷雾,是农场、苗圃、果园、菜园的良好机具。
3、适用于清水、海水及带有酸、碱度的化工介质液体和带有一般糊状的浆料(介质粘度<100厘珀、含固量可达30%以下)。
4、可和任何型号、规格的压滤机配套使用,将浆料送给压滤机时进行压滤的*理想配套泵。
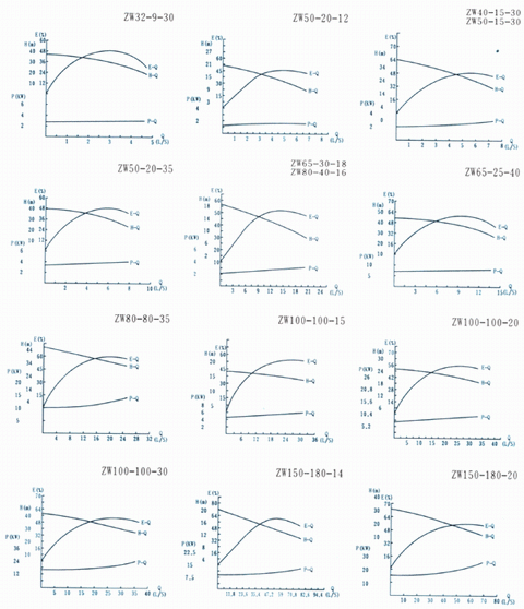
四、工作条件 流量:3~500m3/h 扬程:10~80m 环境温度≤50℃ 介质温度≤100℃ 介质密度≤1.24×103kg/m3
【ZW型自吸排污泵(自吸污水泵)】性能曲线图:
.gif)
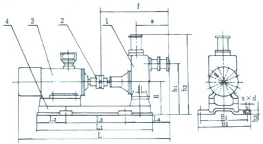
【ZW型自吸排污泵(自吸污水泵)】机组结构:
(1).jpg)
感谢您访问我们海坦泵业的网站www.bengzhan.cn/,如有任何水泵疑问我们一定会尽心尽力为您提供优质的服务。
下一个:注水泵或增压泵的振动原因:
