电话:0577-66996885
传真:0577-66995778
手机:13353386068
Q Q:2219968630
网址:www.bengzhan.cn
地址:浙江省永嘉县瓯北镇三桥工业区
【W型旋涡泵】产品:
【W型旋涡泵】产品简介:
W型旋涡泵是单级悬臂式旋涡泵,泵的进、出口方向为垂直向上。旋涡式叶轮可在轴上沿轴向自由移动,以保证叶轮与泵体、泵盖之间的轴间间隙两侧相等,允许用纸垫调整间隙。泵的轴封形式分填料和单端面机械密封两种,泵和电动机合装在共同底座上。 W型旋涡泵用于输送温度-20℃~+80℃粘度不大于5E,无腐蚀性、无固体颗粒的液体。该泵具有体积小,重量轻,外观大方,W型旋涡泵便于维修的特点,适用于化工、石油、轻纺、电力和其它厂矿的工业生产用水,锅炉给水,暖气送水,高楼、消防、除热循环送水,制造冷冻防暑降温饮料及食堂、饮食业食具消毒的高压送水等广泛用途。该泵*大流量为14.4m3/h,*小流量为0.7m3/h;*大扬程为105m,*小扬程为20m;配套功率:*大为11kW,*小为0.75kW;转速均为2900r/min。
【W型旋涡泵】型号意义:
【W型旋涡泵】产品特点:
1、W型旋涡泵用于输送温度从-20℃~+80℃,粘度不大于5。E,无腐蚀性和具有腐蚀性的无固体颗粒的液体。扬程范围:从15米至132米,流量范围:从0.36米3/时至16.9米3/时
2、W型旋涡泵共有十种型号:具体为20W-20,25W-25,32W-30,40W-10,50W-45,50W-45,65W-50,20W-65,25W-70,32W-72,40W-90。皆为单级悬臂式旋涡泵
3、W型旋涡泵过流部件的材料为HT20-40,铝铸铁和1Cr18Ni9Ti或Cr18Ni12M02Ti四种。(分别用材料代号H、J、B和M表示)
4、W型旋涡泵的密封形式有软填料密封和单端面机械密封。除WB和WM型泵用单端面机械密封外泵出厂时一律装软填料密封。如用户需要其它型式的轴封要在订货时说明。
5、W型旋涡泵的旋转方向:由泵往电机方向看为逆时针方向旋转
【W型旋涡泵】结构说明:
W型旋涡泵的主要零件(风型结构)有1、泵体2、泵盖3、叶轮4、托架结合部5、爪型弹性联轴器6、填料压盖或者甲.端面密封端盖7、单端面密封部件(对于wM泵)。w型旋涡泵与电机合装存-底座上。泵的进、出口方向为斜朝上,经接弯变为垂直向上。叶轮在轴上是可以自由轴向移动的,以保证叶轮与泵体、泵盖之间的轴向间隙两侧相等。允许用纸垫来调整间隙.但纸垫必须放存泵盖出口处的石棉板垫的外面。
【W型旋涡泵】性能参数:
【W型旋涡泵】性能曲线图:
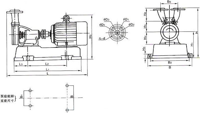
【W型旋涡泵】安装尺寸图:
【W型旋涡泵】安装与拆卸:
1.安装
①安装时不应让泵承受进出口管路的重量。吸入管路应尽量短而直。
②安装后应捡查泵轴与电机轴的同心度及歪斜。同心度的检查方法,可用直尺检查相互连接的两个连轴器*外圆,其同心度不得超过0.1毫米;歪斜检查,可用卡尺检其两连轴器端面之间沿圆周的间隙差,在整个圆周上不得超过0.3毫米。
2.拆卸与接配顺序:
①拆下泵盖。
②利用叶轮上的螺孔拆下叶轮,并将轴上的键取下。
③拆下泵体,并将填料压盖取下(若密封部分为机械密封时,先将压紧)单端面密封端盖的螺母取下,然后再拆下泵体。
④若为机械密封时,拆机械密封部分之前,先取下固定螺钉然后连同单端面密封端盖一起取下。
⑤拆下连轴器。
⑥拆下托架两端的轴承端盖,然后将轴和滚动轴承一起由托架内取出并拆下轴承。
⑦装配顺序与拆卸顺序相反进行,只是应注意用纸垫来调整叶轮与泵体和泵盖之间应保证的轴向间隙
【W型旋涡泵】起动、停止与运行:
起动、停止
1、对W型分联式泵.首先应检酥岢刑迥谑欠裼懈苹朴.若存放时间过长.应打轴承端盖检查一下. 看其是否渲.如发现变质.应重新换油后方可起动。
2、转动联轴器(直联泵可拆下电机风叶5后转动风叶).证实转子部件转动轻松井均匀后.用水平仪检嘶榈乃蕉.找平后.适当上紧与基础联接螺母。
3、测置电动机绝缘强度.若低于5MΩ ,可能是电机受潮或有损伤。若只是受潮.在电机运转一段时间后可自行驱潮:否则.必须修复或更换电动机.以免不良运转对泵带来损伤。
4、试验起动:点动电动机.调整电机转向与要求一致。
5、打吸入管路阀门.引液到泵体内。对泵安装位置高于水平位置的.可在吸入管端加装底阀.关在起动前.向泵壳内灌满所抽液体(吸入路径较短的.次起动濯水.以后由于泵壳内?余的液体.不需重灌)。
6、打压出管路阀门.起动电机.压力表.调整压出管路上的阀门.把压力表读数调到合适。不可让泵在关闭阀门或者流置极小的情况下工作。
7、停车时.先关压力表.停止电动机.然后迅速关闭压出及吸入管路阀门。
8、短时间停车.如环境温度低于液体凝固点.要放空液体。长期停车.应将泵舷础⑼坑秃笸咨票9堋
运转
1、运转过程中.注意观察机组运行状态.尤其是手感电机温度是否过高.分体式泵还须注意轴承温度不得超过70℃。对前者.主要解除办法是检斯苈肥欠穸氯蚍攀敬.使泵内压力过大:后者主要看钙基黄油是否填加合适.轴承是否损坏或电机与泵不同心。
2、发现故障应立即停止工作并进行检查。
【W型旋涡泵】故障原因及排除方法:
【W型旋涡泵】维修与保养:
(1)检查旋涡泵管路及结合处有无松动现象。用手转动旋涡泵,试看旋涡泵是否灵活。
(2)向轴承体内加入轴承润滑机油,观察油位应在油标的中心线处,润滑油应及时更换或补充。
(3)拧下旋涡泵泵体的引水螺塞,灌注引水(或引浆)。
(4)关好出水管路的闸阀和出口压力表及进口真空表。
(5)点动电机,试看电机转向是否正确。
(6)开动电机,当旋涡泵正常运转后,打开出口压力表和进口真空泵视其显示出适当压力后,逐渐打开闸阀,同时检查电机负荷情况。
(7)尽量控制旋涡泵的流量和扬程在标牌上注明的范围内,以保证旋涡泵在*高效率点运转,才能获得*大的节能效果。
(8)旋涡泵在运行过程中,轴承温度不能超过环境温度35C,*高温度不得超过80C 。
(9)如发现旋涡泵有异常声音应立即停车检查原因。
(10)旋涡泵要停止使用时,先关闭闸阀、压力表,然后停止电机。
(11)旋涡泵在工作个月内,经100小时更换润滑油,以后每个500小时,换油一次。
(12)经常调整填料压盖,保证填料室内的滴漏情况正常(以成滴漏出为宜)。
(13)定期检查轴套的磨损情况,磨损较大后应及时更换。
(14)旋涡泵在寒冬季节使用时,停车后,需将泵体下部放水螺塞拧开将介质放净。防止冻裂。
(15)旋涡泵长期停用,需将泵全部拆开,擦干水分,将转动部位及结合处涂以油脂装好,妥善保存
声明:由于产品一直在更新,本文中所有文字、数据、图片均只适用于参考,W型旋涡泵性能参数、W型旋涡泵使用场合、W型旋涡泵材质要求、W型旋涡泵结构、W型旋涡泵安装尺寸以及W型旋涡泵的价格等详情,请联系我们的营销部,电话:0577-66996885、66996886,感谢您访问海坦泵业网站【http://www.054902.com/】,我们一定会尽心尽力为您提供优质的服务。
相关旋涡泵系列产品:

